Chi phí xây nhà 3 tầng 70m2 hết bao nhiêu tiền ? Bảng giá chi tiết 2026
Mục Lục
- 1 Chi phí xây nhà 3 tầng 70m2 bao gồm những hạng mục nào
- 2 Những yếu tố ảnh hưởng đến chi phí xây nhà 3 tầng 70m2
- 3 Cách tính chi phí xây nhà 3 tầng 70m2 (Ví dụ thực tế)
- 4 Cách tính diện tích xây dựng
- 5 Đơn giá thi công theo m2
- 6 Tổng chi phí xây dựng thực tế
- 7 Thực tế công trình nhà 3 tầng 70m2 sau khi hoàn thiện
- 8 Igcons – Đơn vị thi công uy tín, cam kết tiến độ và chất lượng
Chi phí xây nhà 3 tầng 70m2 là mối quan tâm hàng đầu của nhiều gia chủ khi lên kế hoạch xây dựng nhà phố ở Hà Nội và các thành phố lớn. Tuy nhiên, hầu hết thông tin hiện có trên mạng thường đưa ra con số ước tính theo kiểu “khoảng từ X đến Y tỷ” – thiếu căn cứ, khó áp dụng thực tế và không phản ánh đúng mặt bằng giá thị trường hiện tại
Để giải quyết vấn đề này, IGCons tổng hợp và phân tích chi phí xây nhà 3 tầng 70m2 dựa trên công trình thực tế đã thi công hoàn thiện trong năm 2025 – bao gồm chi tiết từng hạng mục, đơn giá nhân công, vật liệu và các khoản phát sinh. Qua đó giúp bạn thiết lập ngân sách chính xác tránh bị tác động về tài chính trong suốt quá trình thi công.
Chi phí xây nhà 3 tầng 70m2 bao gồm những hạng mục nào
Để kiểm soát chi phí xây nhà 3 tầng 70m2 một cách chủ động, bước đầu tiên là hiểu rõ cấu trúc chi phí – tức là tiền sẽ được phân bố vào những đâu. Đây cũng chính là cách các đơn vị thi công chuyên nghiệp lập vào báo giá cho gia chủ
Chi phí móng và kết cấu chịu lực: Bao gồm thi công móng, cột, dầm, sàn và các cấu kiện chịu lực khác. Đây là hạng mục quan trọng nhất, chiếm tỷ trọng lớn trong phần ngân sách và quyết định trực tiếp đến độ bền và an toàn của công trình.
Chi phí thi công phần thô: Bao gồm xây tường, trát tường, cùng hệ thống điện – nước âm tường cơ bản. Đây là phần tạo nên “bộ khung” hoàn chỉnh của ngôi nhà, chưa bao gồm các hạng mục hoàn thiện nội thất
Chi phí hoàn thiện: Bao gồm ốp lát sàn – tường, sơn bả, trần thạch cao, cửa đi – cửa sổ, thiết bị vệ sinh và hệ thống chiếu sáng. Đây là hạng mục ảnh hưởng trực tiếp đến thẩm mỹ và trải nghiệm sử dụng thực tế của ngôi nhà
Chi phí thiết kế và giấy phép xây dựng: Bao gồm thiết kế kiến trúc, kết cấu, hệ thống điện-nước và toàn bộ chi phí thủ tục liên quan. Hạng mục này thường bị gia chủ bỏ sót khi lập ngân sách ban đầu, dẫn đến phát sinh ngoài dự kiến
Những yếu tố ảnh hưởng đến chi phí xây nhà 3 tầng 70m2
Trên thực tế, không có mức giá nào cố định áp dụng cho mọi công trình.Chi phí xây nhà 3 tầng 70m2 có thể chênh lệch tùy theo điều kiện cụ thể của từng dự án. Dưới đây là 4 yếu tố tác động trực tiếp đến tổng ngân sách mà gia chủ cần nắm rõ trước khi lập kế hoạch
Điều kiện đất nền và phương án móng: Đây là yếu tố khó kiểm soát nhất nhưng ảnh hưởng lớn nhất đến chi phí. Nếu đất nền yếu, cần xử lý băng móng cọc hoặc móng bè, chi phí phần móng có thể tăng gấp 1,5 – 2 lần so với móng thông thường. Vì vậy, khảo sát địa chất là bước không thể bỏ qua trước khi bước vào thiết kế và thi công
Phong cách thiết kế và tiêu chuẩn vật liệu: Thiết kế càng phức tạp, vật liệu hoàn thiện càng cao cấp thì chi phí càng cao hơn
Thời điểm thi công: Giá vật liệu xây dựng và nhân công biến động liên tục theo thị trường, chỉ cần lệch thời điểm vài tháng, tổng chi phí xây dựng xây nhà 3 tầng 70m2 cũng sẽ thay đổi đáng kể – đặc biệt trong giai đoạn giá thép, xi măng và nhân công tăng mạnh
Điều kiện thi công thực tế tại công trường: Nhà nằm trong ngõ nhỏ, hạn chế phương tiện vận chuyển hoặc không thể đưa máy móc vào thi công sẽ khiến chi phí nhân công tăng và tiến độ kéo dài hơn dự kiến. Đây là yếu tố thường bị bỏ qua nhưng gây chi phí phát sinh khá lớn trên thực tế.
Cách tính chi phí xây nhà 3 tầng 70m2 (Ví dụ thực tế)
Khác với những bài viết chỉ đưa ra con số chung chung, Igcons lấy dữ liệu trực tiếp từ công trình thực tế tại ngõ 102 Thúy Lĩnh – đã thi công và hoàn thiện bàn giao trong năm 2025 – để minh họa toàn bộ cách tính chi phí xây nhà 3 tầng 70m2
Cách tiếp cận này giúp bạn không chỉ biết con số cuối cùng, mà còn hiểu rõ từng con số được hình thành như thế nào – từ phần móng, kết cấu, thi công thô cho đến hoàn thiện – để chủ động kiểm soát ngay ban đầu.
Hình ảnh thực tế công trình 41 Thúy Lĩnh
Công thức
Tổng chi phí xây nhà = Diện tích xây dựng x Đơn giá/m2
Cách tính diện tích xây dựng
Với diện tích đất 73m2, sử dụng toàn bộ đất để xây dựng. Diện tích xây dựng của công trình sẽ được tính toán như sau:
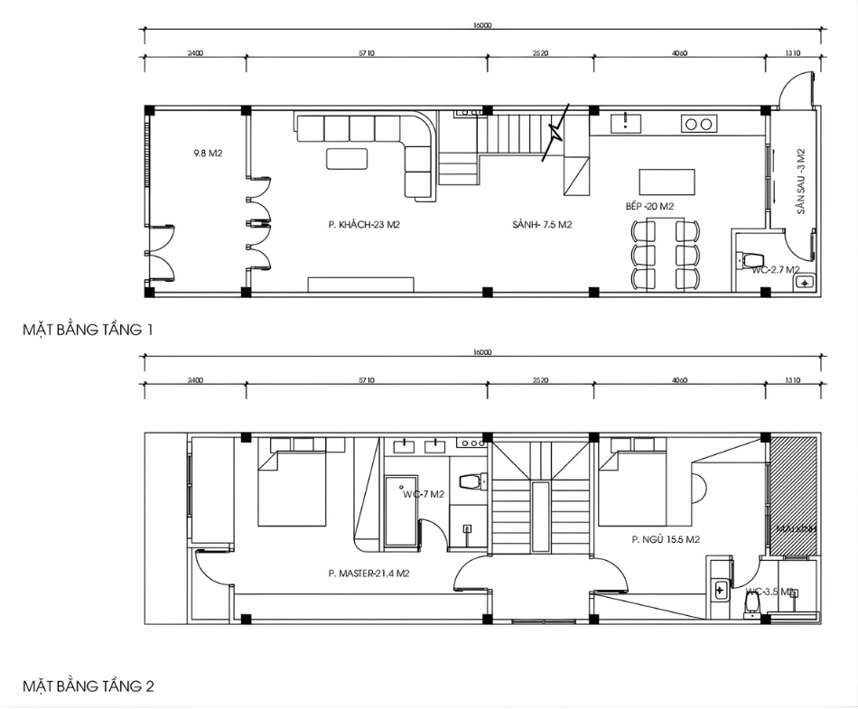
- Tầng 1: 4.53 x 16 = 72.48m2
- Tầng 2: 4.53 x 16 = 72.48m2
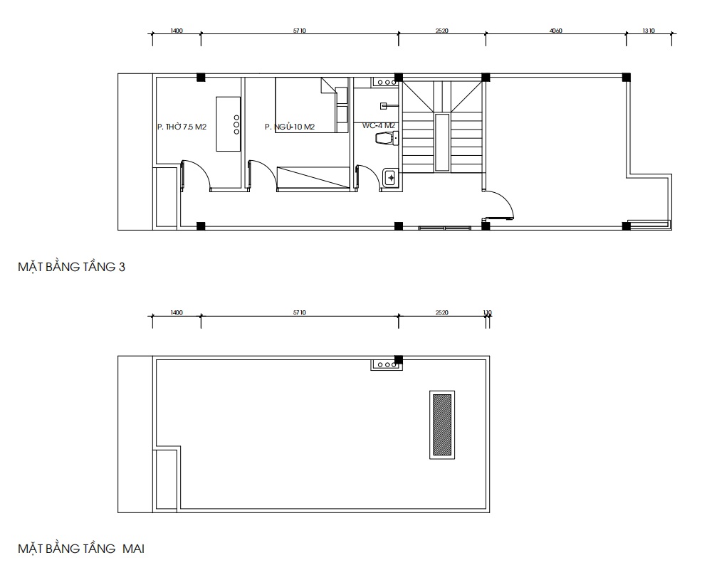
- Tầng 3: 14.69 x 4.53 + 1.62 x 1.31 = 68.7m2
Tổng diện tích xây dựng: 72.48 + 72.48 + 68.7 = 213.66m2
- Mặt đứng trục A-B
- Mặt bằng tầng 1,2
- Mặt bằng tầng 3 và mái
Đơn giá thi công theo m2
Trên thị trường hiện nay, đơn giá dao động khoảng:
- Thi công xây thô: Từ khoảng 4.500.000 – 5.800.000 VND/m2
- Thi công hoàn thiện: Từ khoảng 7.000.000 – 9.000.000/m2
Tuy nhiên, cần hiểu rõ đây chỉ là mức giá tham khảo, bởi trên thực tế, đơn giá sẽ không cố định mà được điều chỉnh dựa trên từng công trình cụ thể
Với công trình Thúy Lĩnh, đơn giá thi công được IGcons xây dựng dựa trên quá trình khảo sát và đánh giá các yếu tố thực tế, bao gồm
Điều kiện thi công:
- Phía trước mặt tiền có ngõ rộng 1,5m
- Phía bên trái thoáng, phía bên phải có nhà xây cao tầng, đằng sau có nhà xây 1 tầng
- Công trình sẽ trát tường 2 bên, đảm bảo tính thẩm mỹ và lâu dài
Quy mô
- Công trình sẽ xây hoàn thiện 3 tầng bao gồm các hạng mục: xây thô, sơn bả, ốp lát, lắp đặt cửa, lan can, trần thạch cao, hệ thống điện nước, thiết bị vệ sinh
- Tầng 1: Phòng khách + Phòng bếp
- Tầng 2: 2 Phòng ngủ
- Tầng 3: Phòng ngủ + Phòng thờ + Sân phơi
Mức độ hoàn thiện: Gia chủ định hướng sử dụng hệ vật tư và thiết bị ở phân khúc tốt, ưu tiên chất lượng và độ bền
- Kết cấu: Bê tông thương phẩm mác 250 Sông Đà, thép Hòa Phát, xi măng PCB30 cho đổ bê tông – MC25 cho xây trát, gạch đặc Tuynel A1
- Hệ thống điện nước: Dây điện Cadisun, ống cấp nước PPR Dismy, thoát PVC Dismy C1, ống thoát nước PVC D90,D42, ống cấp nước PPR D50
- Chống thấm: Sika Membrane cho sàn và Sika Grout cho cổ ống
- Hoàn thiện: Gạch ốp Viglacera, lan can kính – tay vịn gỗ lim, cửa composite, cửa nhôm Xingfa
- Sơn&trần: Sơn Jotun – jotaplax, khung xương và tấm Grypoc Vĩnh Tường
Sau khi đã bóc tách khối lượng và tối ưu phương án, IGcons thống nhất với chủ đầu tư mức giá 6.500.000 VND/m2
Đây là đơn giá được ký kết trong hợp đồng và triển khai thi công
Tổng chi phí xây dựng thực tế
Từ đó, tổng chi phí được tính như sau:
Tổng chi phí xây nhà = Diện tích xây dựng x Đơn giá/m2 = 213.66 x 6.500.000 VND = 1.388.790.000 VND
Để giúp gia chủ kiểm soát chặt chẽ và hình dung rõ hơn, IGcons đã chia báo giá ra từng hạng mục rõ ràng:
- Phần thô
- Phần hoàn thiện
- Điều hòa
- Chống thấm
- Phụ lục hợp đồng
- Bảng dự toán điều hòa
- Bảng dự toán phần thô
- Bảng dự toán chống thấm
- Bảng dự toán phần hoàn thiện
Thực tế công trình nhà 3 tầng 70m2 sau khi hoàn thiện
Dưới đây là hình ảnh thi công và hoàn thiện thực tế công trình nhà 3 tầng 70m2
- Không giang phòng khách hoàn thiện
- Không gian phòng khách hoàn thiện
- Không gian phòng bếp hoàn thiện
- Không gian phòng ngủ Master hoàn thiện
- Không gian phòng thờ hoàn thiện
Igcons – Đơn vị thi công uy tín, cam kết tiến độ và chất lượng
Igcons là đơn vị thiết kế và thi công chuyên nghiệp tại Hà Nội, với kinh nghiệm triển khai nhiều công trình thực tế từ nhà phố, biệt thự đến chung cư mini cho thuê.
Không chỉ tập trung vào việc tối ưu chi phí phù hợp với từng gia chủ, IGcons đặc biệt chú trọng đến quá trình thi công và chất lượng, độ bền của công trình thông qua việc kiểm soát chặt chẽ vật liệu đầu vào, quy trình thi công và nghiệm thu theo từng hạng mục. Đội ngũ kỹ sư giám sát xuyên suốt giúp đảm bảo công trình luôn đúng kĩ thuật, đúng thiết kế và hạn chế sai sót.
Nếu bạn đang có kế hoạch xây nhà 3 tầng 50m2 mà cần một đơn vị tư vấn chi phí thực tế – thi công bài bản, hạn chế phát sinh, IGcons sẵn sàng đồng hành từ bước lên phương án đến khi hoàn thiện thi công.
Liên hệ IGcons để được tư vấn chi tiết và nhận báo giá phù hợp với nhu cầu thực tế của bạn.
Bài viết liên quan
Mục Lục1 Cập Nhật Tiến Độ Thi Công Móng | Công Trình Thanh Lân, Vĩnh Hưng, Hà Nội1.1 Đặc Thù Công Trình — Thi Công Trong Ngõ Hẹp Khu Dân Cư1.2 Tiến Độ Thi Công Tuần Này IGcons cập nhật tiến độ thi công móng tại công trình Thanh Lân, Vĩnh Hưng — gia cố […]
Nhật ký thi công – Nhà anh Lâm tại Kim GiangHạng mục: Ốp lát và cán nền Tại dự án nhà anh Lâm, Kim Giang, sau khi hoàn tất phần xây thô và kiểm tra toàn bộ hệ thống kết cấu, đội thi công IGCONS đã bước vào giai đoạn ốp lát và cán nền […]
Nhật ký thi công – Nhà anh Đăng tại Cảm HộiHạng mục: Hoàn thiện nội thất Tại dự án nhà anh Đăng, Cảm Hội, sau khi hoàn tất phần xây thô và kiểm định toàn bộ hệ thống kết cấu, đội thi công IGCONS đã chính thức bước vào giai đoạn hoàn thiện nội thất […]





















